Προκήρυξη διαγωνισμού για την κατασκευή Κλειστού Γυμναστηρίου στην Πάρο

Διαφήμιση

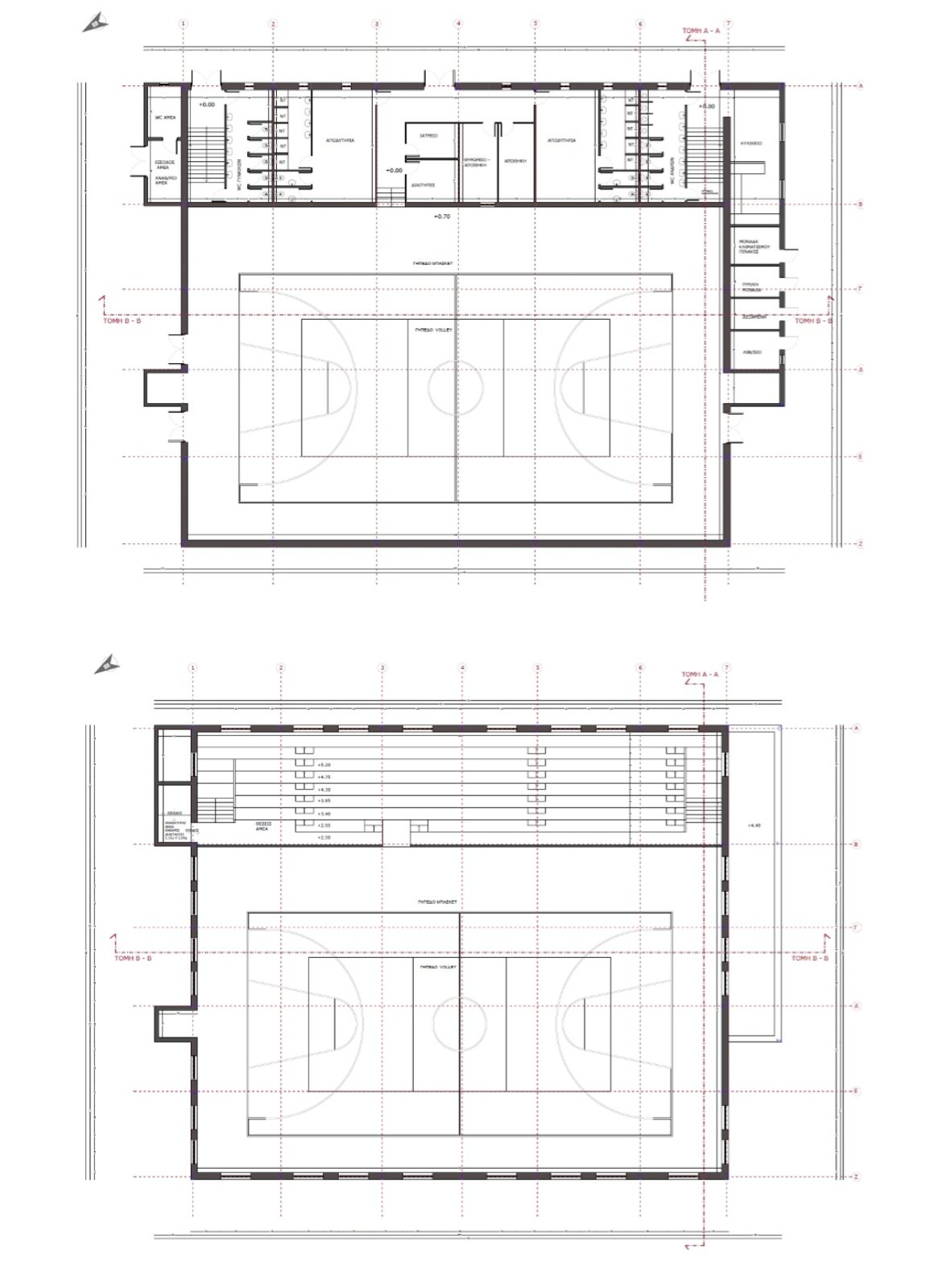
Ο Δήμος Πάρου ενημερώνει ότι σήμερα, Δευτέρα 20 Απριλίου 2026, προκηρύχθηκε ανοιχτός δημόσιος ηλεκτρονικός διαγωνισμός, για την ανάθεση του έργου «Κατασκευή Κλειστού Γυμναστηρίου στην Πάρο, στη θέση Ζευλάκι Παροικίας», με προϋπολογισμό 2.459.677,42 € (χωρίς Φ.Π.Α.).

Παρέχεται ελεύθερη, πλήρης, άμεση και δωρεάν ηλεκτρονική πρόσβαση στα έγγραφα της σύμβασης στον ειδικό, δημόσια προσβάσιμο χώρο «Ηλεκτρονικοί Διαγωνισμοί» της πύλης Ε.Σ.Η.ΔΗ.Σ. (α/α 220209), καθώς και στην ιστοσελίδα του Δήμου Πάρου www.paros.gr, ακολουθώντας τη διαδρομή: Ενημέρωση → Προκηρύξεις.

Ως ημερομηνία λήξης της προθεσμίας υποβολής των προσφορών ορίζεται η 8η Μαΐου 2026, ημέρα Παρασκευή και ώρα 10:00 π.μ.

Ο Δήμαρχος Πάρου, Κώστας Μπιζάς, σε σχετική δήλωσή του αναφέρει:

«Με την προκήρυξη του ανοικτού ηλεκτρονικού διαγωνισμού για την κατασκευή του κλειστού γυμναστηρίου στο Ζευλάκι της Παροικίας, μπαίνει σε τροχιά υλοποίησης ένα έργο πνοής για τον αθλητισμό του νησιού μας και ένα διαχρονικό αίτημα της τοπικής κοινωνίας.

Διαφήμιση

Το έργο, συνολικού προϋπολογισμού 3.050.000,00 ευρώ, χρηματοδοτείται από πιστώσεις του Αναπτυξιακού Προγράμματος Δημοσίων Επενδύσεων του ΥΠΑΙΘΑ, ύψους 2.950.000,00 ευρώ, καθώς και από ίδιους πόρους του Δήμου Πάρου ύψους 100.000,00 ευρώ, γεγονός που επιβεβαιώνει τη σταθερή βούληση της Πολιτείας να στηρίξει ουσιαστικά την ανάπτυξη του αθλητισμού στα νησιά μας.

Πρόκειται για μια παρέμβαση που έρχεται να καλύψει χρόνιες ανάγκες της αθλητικής κοινότητας της Πάρου, προσφέροντας σύγχρονες, ασφαλείς και λειτουργικές υποδομές στους νέους, στους αθλητικούς συλλόγους και στο σύνολο των πολιτών. Αποτελεί ένα εμβληματικό έργο που θα αναβαθμίσει ουσιαστικά τον τοπικό αθλητισμό, μια επένδυση με διαχρονικό αποτύπωμα στο μέλλον της Πάρου.

Θα ήθελα να εκφράσω τις θερμές μου ευχαριστίες προς τον Υπουργό Αθλητισμού κ. Ιωάννη Βρούτση για τη στήριξη και την καθοριστική συμβολή του στην προώθηση και χρηματοδότηση του έργου, καθώς και προς τα στελέχη της Διεύθυνσης Τεχνικών  Έργων και Υπηρεσιών του Δήμου Πάρου για την άρτια συνεργασία και την ολοκλήρωση όλων των απαραίτητων ενεργειών που οδήγησαν στην προετοιμασία και δημοπράτηση του έργου.

Με σχέδιο, συνέπεια και συνεργασία, συνεχίζουμε να υλοποιούμε έργα που αναβαθμίζουν την καθημερινότητα και δημιουργούν προοπτική ανάπτυξης για τις επόμενες γενιές».