Εξασφάλιση χρηματοδότησης για τις νέες αίθουσες στο 2ο Δημοτικό Σχολείο Νάξου

Διαφήμιση

Την εξασφάλιση της χρηματοδότησης για την αναβάθμιση των υφιστάμενων υποδομών και την ανέγερση νέων αιθουσών στο 2ο Δημοτικό Σχολείο Νάξου διεκδίκησε και πέτυχε ο Δήμος Νάξου και Μικρών Κυκλάδων, προκειμένου να καλύψει τις διαρκώς αυξανόμενες ανάγκες στις σχολικές υποδομές πρωτοβάθμιας εκπαίδευσης. Η ένταξη του έργου στο επιχειρησιακό πρόγραμμα «Νότιο Αιγαίο 2014-2020» υπεγράφη από την Περιφέρεια Νοτίου Αιγαίου με επιλέξιμη δημόσια δαπάνη 1.758.900 €.

Χάρη στην άρτια προετοιμασία της πρότασης από τις αρμόδιες υπηρεσίες του Δήμου αλλά και τις πιέσεις που ασκήθηκαν, η πρόταση αξιολογήθηκε θετικά συγκεντρώνοντας μάλιστα την υψηλότερη βαθμολογία μεταξύ των υποβληθέντων προτάσεων.

Διαφήμιση

Εκφράζοντας την ικανοποίηση του για την ένταξη του έργου, ο Δήμαρχος Νάξου και Μικρών Κυκλάδων Μανόλης Μαργαρίτης τόνισε ότι «κάθε έργο που αφορά στη νεολαία του τόπου μας αποτελεί προτεραιότητα της δημοτικής αρχής. Με την αναβάθμιση και βελτίωση των υποδομών εκπαίδευσης τα σχολεία μας θα ανταποκρίνονται στις σύγχρονες ανάγκες εκπαίδευσης, προσφέροντας τις καλύτερες υποδομές διδασκαλίας σε μαθητές και εκπαιδευτικούς».

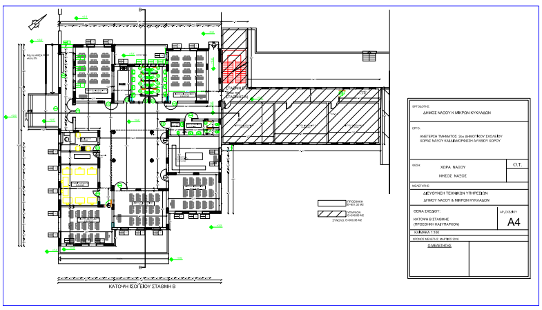
Η μελέτη του έργου προβλέπει την κατεδάφιση αιθουσών και την ανέγερση νέου τμήματος, στο οποίο θα περιλαμβάνονται 5 αίθουσες διδασκαλίας, γραφεία διευθυντή και καθηγητών, εργαστήρι πληροφορικής, βιβλιοθήκη, κουζίνα, τουαλέτες, γενικό αρχείο και αποθηκευτικούς χώρους, καθώς και εσωτερικό πολυδύναμο χώρο. Έτσι, με την προσθήκη των νέων και τη χρήση των παλαιών αιθουσών, εξασφαλίζονται συνολικά 11 αίθουσες διδασκαλίας. Επίσης, προβλέπονται εργασίες και στον περιβάλλοντα χώρο του σχολικού συγκροτήματος. Συγκεκριμένα, στον προαύλιο χώρο θα κατασκευαστούν γήπεδο βόλεϊ και μπάσκετ, μικρές κερκίδες, καθιστικά, πέργκολα σκίασης, καθώς και ο χώρος εισόδου. Το νέο σχολικό συγκρότημα θα μπορεί πλέον να φιλοξενήσει 250 μαθητές.