Έγκριση χρηματοδότησης από το Ε.Π. "Νότιο Αιγαίο"

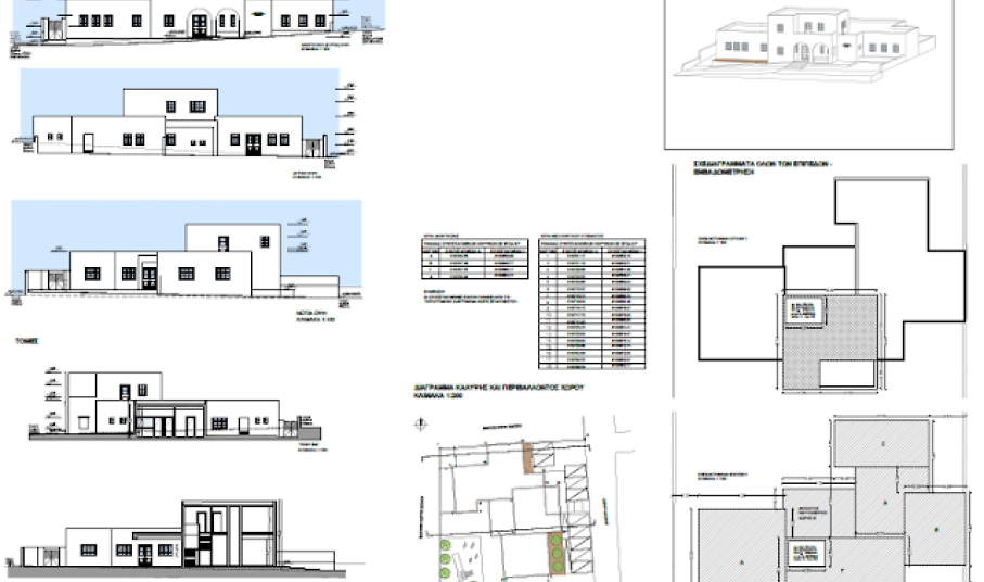
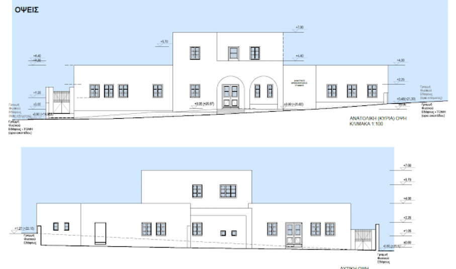
Κατασκευή και αναβάθμιση του Βρεφονηπιακού Σταθμού Μαρμάρων

Σύμφωνα με το υπ' αρ. 3073/24.09.2018 της Ειδικής Υπηρεσίας Διαχείρισης της Περιφέρειας Νοτίου Αιγαίου και στο πλαίσιο της αξιολόγησης των προτάσεων που υποβλήθηκαν για χρηματοδότηση από το Ε.Π. "Νότιο Αιγαίο" στον Άξονα Προτεραιότητας 3  -"Βελτίωση βασικών υποδομών" της πρόσκλησης  ΝΑΙΓ62/2509 και αρ. πρωτ. 3723/04.12.2017, με τίτλο "Κατασκευή και αναβάθμιση παιδικών, βρεφονηπιακών σταθμών», εγκρίθηκε η χρηματοδότηση για την «Κατασκευή και αναβάθμιση του Βρεφονηπιακού Σταθμού της Δημοτικής Κοινότητας Αρχιλόχου στον οικισμό Μαρμάρων».

Η μελέτη για το έργο "Βρεφονηπιακός σταθμός Μαρμάρων Πάρου με κωδικό 5029385, δικαιούχο τον Δήμο Πάρου και προϋπολογισμό 1.000.000,00 € εκπονήθηκε εξ ολοκλήρου από τη Δ/νση Τεχνικών Υπηρεσιών του Δήμου και είχε εγκριθεί με την υπ.αρ. 349/2016 απόφαση του Δημοτικού Συμβουλίου Πάρου, ενώ με την υπ. αρ. 118/2018 απόφαση είχαν εγκριθεί τα τεύχη δημοπράτησης, οι όροι της πρόσκλησης και η ανάληψη λειτουργίας και συντήρησης του έργου εκ μέρους του Δήμου Πάρου. Τέλος, το έργο "Βρεφονηπιακός Σταθμός Μαρμάρων" απέσπασε τη μεγαλύτερη βαθμολογία (23) στον Οριστικό Πίνακα κατάταξης αξιολογημένων προτάσεων, ο οποίος εκδίδεται κατά το στάδιο Β' της συγκριτικής αξιολόγησης.

Διαφήμιση

Με την ολοκλήρωση του έργου, ο Δήμος Πάρου θα αποκτήσει τον πρώτο ιδιόκτητο βρεφονηπιακό σταθμό, ένα ακόμα βήμα σε μία σειρά πρωτοβουλιών για την επέκταση και βελτίωση κοινωνικών υποδομών που προάγουν την ισότιμη πρόσβαση όλων των πολιτών σε υψηλής ποιότητας υπηρεσίες και συμβάλουν στην αξιοποίηση της Δημοτικής Περιουσίας.