Αναβαθμίζονται σχολικές υποδομές στη Νάξο
- Παρασκευή, 1 Νοεμβρίου, 2024 - 12:57
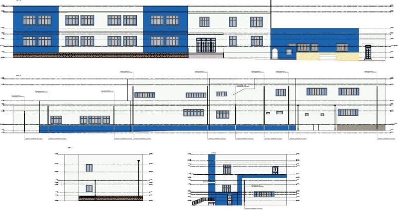
Ένα ακόμα σημαντικό έργο που αφορά στη στατική ενίσχυση και ενεργειακή αναβάθμιση δύο ιστορικών σχολικών μονάδων, του 1ου Γυμνασίου Νάξου και του Γυμνασίου Τραγαίας, εντάχθηκε στο πρόγραμμα «Νότιο Αιγαίο» με προϋπολογισμό 2,71 εκατομμυρίων ευρώ.
Το έργο, το οποίο στοχεύει στη βελτίωση της ασφάλειας αλλά και της ενεργειακής απόδοσης των εκπαιδευτικών αυτών κτιρίων, ανταποκρίνεται στις σύγχρονες απαιτήσεις λειτουργικότητας, διασφαλίζοντας τη βιωσιμότητα των κτιρίων αλλά κυρίως τη μέγιστη ασφάλεια της μαθητικής κοινότητας.
Οι επεμβάσεις περιλαμβάνουν την ενίσχυση των φερόντων δομικών στοιχείων, τη θωράκιση των κατασκευών έναντι σεισμικών φορτίων και τη βελτίωση της συνολικής ανθεκτικότητας των κτιρίων. Οι εργασίες ενίσχυσης περιλαμβάνουν, μεταξύ άλλων, καθαιρέσεις, επισκευές βλαβών, εργασίες ενισχύσεων και αποκατάσταση των τοιχοποιιών και των δαπέδων.
Παράλληλα με τη στατική θωράκιση, θα πραγματοποιηθεί ενεργειακή αναβάθμιση των δύο σχολικών κτιρίων, στοχεύοντας στη μείωση της ενεργειακής κατανάλωσης και τη βελτίωση των συνθηκών εντός των χώρων. Οι προγραμματισμένες εργασίες περιλαμβάνουν τη θερμομόνωση των κτιριακών κελυφών, αντικατάσταση των παλαιών κουφωμάτων, αναβάθμιση των συστημάτων θέρμανσης και ψύξης, καθώς και την εγκατάσταση μονώσεων και σύγχρονων ηλεκτρομηχανολογικών εγκαταστάσεων. Με αυτές τις παρεμβάσεις, τα σχολεία θα μετατραπούν σε πρότυπα βιωσιμότητας και ενεργειακής απόδοσης.
«Στόχος μας είναι αναβάθμιση των σχολικών υποδομών, διασφαλίζοντας ένα σύγχρονο, ασφαλές και λειτουργικό περιβάλλον για τους μαθητές και τους εκπαιδευτικούς μας. Ευχαριστώ θερμά τον Περιφερειάρχη Νοτίου Αιγαίου κ. Χατζημάρκο για τη συμβολή του, καθώς και τα στελέχη της Τεχνικής Υπηρεσίας του Δήμου για την επιτυχή προετοιμασία του φακέλου που υποβλήθηκε προς ένταξη» δήλωσε ο Δήμαρχος Νάξου και Μικρών Κυκλάδων Δημήτρης Λιανός.
- Εισέλθετε στο σύστημα ή εγγραφείτε για να υποβάλετε σχόλια
Διαβάστε ακόμα
- Νάξος: Ενημέρωση για τη σίτιση των αδέσποτων γατών
4 Δεκ. 2024 - 13:59 - Νάξος: Καλοκαιρινή φύλαξη παιδιών με δημιουργική απασχόληση
6 Ιουν. 2024 - 8:16 - Υποδομές εξυπηρέτησης ΑμεΑ σε παραλίες της Νάξου και της Δονούσας
24 Οκτ. 2025 - 8:44 - Σε ιδιώτη οι εργασίες συντήρησης πρασίνου στη Νάξο
21 Οκτ. 2025 - 6:17 - Καινοτόμες λύσεις για τη βιώσιμη διαχείριση του νερού
20 Οκτ. 2025 - 6:17





Μ.Η.Τ. 232111