Εντός του 2022 η έναρξη υλοποίησης του ΚΕΓΕ(?)
- Τρίτη, 26 Οκτωβρίου, 2021 - 06:19
Νέα παράταση δόθηκε στην ανάδοχο μελετητική εταιρεία, όσον αφορά στην ωρίμανση του φακέλου για την κατασκευή του κτηρίου, που αναμένεται να στεγάσει το Κέντρο Γεωργικής Εκπαίδευσης (ΚΕΓΕ) στο Σαγκρί της Νάξου.
Τον Απρίλιο του 2022 αναμένεται να παραδοθεί η μελέτη που αφορά στην «Ανέγερση εκπαιδευτηρίου στην Τ.Κ. Σαγκρίου», που στόχος είναι να στεγάσει τις υπηρεσίες του Κέντρου Γεωργικής Εκπαίδευσης για την κατάρτιση και εκπαίδευση των αγροτο-κτηνοτρόφων της Νάξου και των γύρω νησιών.
Η κατασκευή του ΚΕΓΕ αποτελεί ένα πάγιο αίτημα της ιδιαίτερα μεγάλης μερίδας της ναξιώτικης κοινωνίας, που ασχολείται με τον πρωτογενή τομέα, ενώ αναμένεται να δώσει κίνητρο και εφόδια σε αρκετούς νέους, αφενός να απασχοληθούν με την πρωτογενή παραγωγή και αφετέρου να αναπτύξουν με νέα μέσα και τεχνικές την παραγωγή τους.
Αίτημα δεκαετιών η λειτουργία ΚΕΓΕ στη Νάξο
Υπενθυμίζεται, ότι από το 2001, που ο Κυκλαδίτης υπουργός Γεωργίας, με καταγωγή από τη Νάξο, κ. Γιώργος Ανωμερίτης, συνήψε συμφωνία με τον – τότε – Δήμο Νάξου, προκειμένου να παραχωρήσει το υπουργείο το οικόπεδο του ΚΕΓΕ στην πόλη της Νάξου και ο Δήμος ως «αντιπαροχή» να κατασκευάσει κτίριο για το ΚΕΓΕ σε δικό του οικόπεδο, έξω από τη Χώρα, μόλις το 2018 ο Δήμος Νάξου και Μικρών Κυκλάδων, ξεκίνησε τις διαδικασίες για την ανέγερση του κτιρίου και μάλιστα αφού είχε πιεστεί, τόσο από την Επιτροπή Διεκδίκησης και Αγώνα για το ΚΕΓΕ Νάξου και πολλούς αγρότες του νησιού, όσο και από τον π. υπουργό, κ. Βαγγέλη Αποστόλου, προκειμένου να προχωρήσει το ζήτημα του ΚΕΓΕ, αφού από το Υπουργείο υπήρχε η πρόθεση να τηρηθεί η συμφωνία.
Το μελετητικό έργο ανατέθηκε σε κοινοπραξία μελετητικών γραφείων στις 30 Δεκεμβρίου του 2019, με την υπογραφή της σχετικής σύμβασης, ενώ οι εργασίες εκπόνησης της μελέτης ξεκίνησαν στις 15 Ιανουαρίου 2020.
Όπως, ωστόσο, είχε τονίσει ο Δήμαρχος Νάξου & Μικρών Κυκλάδων, κ. Δημήτρης Λιανός, κατά τη διάρκεια του 26ου Συνεδρίου Νέων Αγροτών, το οποίο είχε πραγματοποιηθεί το 2019 στη Νάξο, ο Δήμος έχει τη δυνατότητα άμεσα να διαθέσει χώρο για τη λειτουργία σχετικής δομής έως και την ολοκλήρωση της κατασκευής του Εκπαιδευτηρίου στο Σαγκρί.
Στο συνέδριο τότε, παρουσία του Διευθυντή Αγροτικής Κατάρτισης του ΕΛΓΟ ΔΗΜΗΤΡΑ, κ. Αθανάσιου Μπουρλέτσικα, τη συζήτηση είχε μονοπωλήσει σχεδόν το ζήτημα της λειτουργίας μίας τέτοιας δομής στη Νάξο, καθώς υπόθεση του ΚΕΓΕ Νάξου αποτελεί μία “πληγή” πολλών δεκαετιών για τους ανθρώπους της Νάξου, αφού Κέντρο Γεωργικής Εκπαίδευσης λειτουργούσε στη Χώρα πριν από πολλά χρόνια, ωστόσο η λειτουργία του ανεστάλη λόγω έλλειψης πόρων και το κτίριο, στο οποίο στεγαζόταν το ΚΕΓΕ, σχεδόν κατέρρευσε, λόγω αχρησίας.
Από την πλευρά του, τότε ο κ. Μπουρλέτσικας, αποφεύγοντας να προβεί σε κάποιου είδους εξαγγελία ή δέσμευση, είχε από τη μία πλευρά παραδεχτεί ότι ο ΕΛΓΟ ΔΗΜΗΤΡΑ τηρούσε όλα αυτά τα χρόνια στάση αναμονής, προκειμένου να κινηθούν οι σχετικές διαδικασίες από το Δήμο Νάξου & Μικρών Κυκλάδων, ενώ είχε εξηγήσει, πως η κατάρτιση των νέων αγροτών αποτελεί δύσκολο εγχείρημα, λόγω της διασποράς τους σε όλη την Ελλάδα, πόσω δε μάλλον για τη νησιωτική χώρα, όπου σε κάθε νησί, υπάρχουν λιγοστοί αγροτοκτηνοτρόφοι και θα πρέπει με κάποιο τρόπο να συγκεντρωθούν σε ένα μέρος. Επίσης είχε σημειώσει, πως παρά το γεγονός, ότι τα προγράμματα επιμόρφωσης που διοργανώνει το ΕΛΓΟ, θα μπορούσαν να εκμεταλλευτούν τις δυνατότητες που δίνουν οι νέες τεχνολογίες (όπως π.χ. σεμινάρια μέσω skype), το Πρόγραμμα Αγροτικής Ανάπτυξης δε δίνει τέτοια δυνατότητα. Παράλληλα, είχε αποφύγει να δώσει κάποια απάντηση, όσον αφορά στην πρόθεση του οργανισμού να προχωρήσει σε λειτουργία τμημάτων κατάρτισης, σε προσωρινό χώρο που μπορεί να διαθέσει ο Δήμος, έως και την ολοκλήρωση του Εκπαιδευτηρίου.
Η νέα παράταση έως τον Απρίλιο του 2022
Κατά τη συνεδρίαση της Οικονομικής Επιτροπής του Δήμου Νάξου & Μικρών Κυκλάδων, στις 19 Οκτωβρίου, συζητήθηκε το θέμα της έγκρισης ή μη του αιτήματος παράτασης της συνολικής προθεσμίας εκπόνησης της μελέτης του έργου «Ανέγερση εκπαιδευτηρίου στην Τ.Κ. Σαγκρίου».
Σύμφωνα με τη σχετική εισήγηση εκ μέρους της Τεχνικής Υπηρεσίας του Δήμου, Με έγγραφο της Διεύθυνσης Τεχνικών Υπηρεσιών στις 27 Απριλίου του 2021 δόθηκε η εντολή στον ανάδοχο για την εκπόνηση της σχετικής αρχιτεκτονικής μελέτης. Ο ανάδοχος υπέβαλε τα παραδοτέα της αρχιτεκτονικής μελέτης εμπρόθεσμα και συγκεκριμένα στις 11 Ιουνίου του 2021 και στις 30 του ίδιου μήνα επανυποβλήθηκαν καθώς απαιτήθηκαν αλλαγές, κατόπιν υποδείξεως της Υπηρεσίας.
Τρεις μήνες αργότερα, στις 28 Σεπτεμβρίου, ο ανάδοχος υπέβαλε ξανά τα παραδοτέα της αρχιτεκτονικής μελέτης εφαρμογής, καθώς απαιτήθηκαν ξανά αλλαγές, κατόπιν υποδείξεως των ηλεκτρομηχανολογικών μελετών.
Σύμφωνα με τις διευκρινήσεις της Τεχνικής Υπηρεσίας, οι αλλαγές που ζητήθηκαν αφορούσαν κυρίως στην τροποποίηση των σχεδίων, σχετικά κυρίως με την λειτουργικότητα του χώρου και την εξασφάλιση της φωτεινότητας των αιθουσών, όπως και σε μικροαλλαγές όσον φορά σε Η/Μ εργασίες.
Λαμβάνοντας υπόψιν, μεταξύ άλλων, ότι η καθυστέρηση δεν οφείλεται σε υπαιτιότητα του αναδόχου, ούτε σε υπέρβαση του καθαρού χρόνου της σύμβασης, η υπηρεσία του Δήμου Νάξου & Μικρών Κυκλάδων εισηγήθηκε την χορήγηση παράτασης της συνολικής προθεσμίας περαίωσης της μελέτης έως τις 9 Απριλίου 2022.
Μάλιστα, σύμφωνα με την προϊσταμένη του Τμήματος Κτηριακών Έργων, της Δ/νσης Τεχνικών Υπηρεσιών του Δήμου, η οποία παρίστατο στη συνεδρίαση, «η προθεσμία περαίωσης αφορά στην τελική προθεσμία όλης της μελέτης, έως και τα τεύχη δημοπράτησης. Η μελέτη παραδίδεται τμηματικά και σύμφωνα με το εγκεκριμένο χρονοδιάγραμμα, ενώ ολοκληρώνεται και εγκρίνεται κατά είδος και σειρά (αρχιτεκτονική, στατική, Η/Μ), ώστε από την τελική μελέτη εφαρμογής να εκπονηθούν τα τεύχη δημοπράτησης».
Εν αναμονή της παράδοσης ολοκληρωμένου φακέλου μελετών
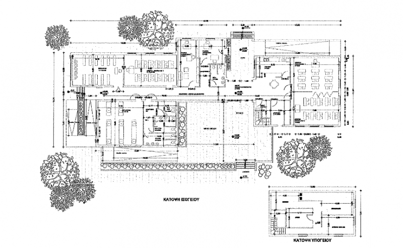
Σύμφωνα με το σχεδιασμό, όπως αυτός έχει προκύψει κατόπιν σχετικής αλληλογραφίας και ενεργειών μεταξύ του Δήμου Νάξου και Μικρών Κυκλάδων και του Υπουργείου Αγροτικής Ανάπτυξης, έχει αποφασιστεί η ανέγερση εκπαιδευτηρίου σε έκταση ιδιοκτησίας του Δήμου στην Τοπική Κοινότητα Σαγκρίου, όπου θα ανεγερθεί ισόγειο κτήριο, σύμφωνα με υπόδειγμα που έχει δοθεί από το Υπουργείο, με σκοπό την εκπαίδευση – ενημέρωση σχετικά με αγροτικά θέματα. Επίσης, η μελέτη θα περιλαμβάνει διαμόρφωση του περιβάλλοντος χώρου του οικοπέδου, έτσι ώστε να χρησιμοποιείται ως χώρος δημιουργίας φυτωρίων για την παρακολούθηση ανάπτυξης φυτών.
Πιο συγκεκριμένα, αναμένεται η κατασκευή ισόγειου κτηρίου 385 τ.μ., που θα στεγάσει τους κύριους χώρους, όπως επίσης και περίπου 85τ.μ. υπόγειων χώρων, που θα λειτουργήσουν ως βοηθητικοί.
Στο πλαίσιο της ανάθεσης, ο ανάδοχος έχει αναλάβει την εκπόνηση τοπογραφικής μελέτης, αρχιτεκτονικής μελέτης (όπως προαναφέρθηκε), μελέτης διαμόρφωσης περιβάλλοντος χώρου (για 2.000 τ.μ.), στατική μελέτη, Η/Μ μελέτη, μελέτη ενεργειακής απόδοσης κτηρίων, ΣΑΥ-ΦΑΥ και τέλος τη σύνταξη των τευχών δημοπράτησης.
- Εισέλθετε στο σύστημα ή εγγραφείτε για να υποβάλετε σχόλια
Διαβάστε ακόμα
- Σηκώνουν "μανίκια" από νωρίς για τη ναυαγοσωστική κάλυψη
30 Οκτ. 2025 - 6:17 - Νάξος: Νέα σελίδα πολιτιστικής συνεργασίας
20 Οκτ. 2025 - 19:34 - ΣΥΡΙΖΑ Κυκλάδων: “Ο πρωτογενής τομέας στα πρόθυρα λουκέτου”
20 Οκτ. 2025 - 9:52 - Ασφαλιστικά μέτρα από πολίτες για τον ΒΙΟ.ΚΑ.
11 Σεπ. 2025 - 6:17 - Προχωράει η αποκατάσταση ιστορικών ναών
5 Σεπ. 2025 - 6:17




Μ.Η.Τ. 232111