Με εξάμηνη καθυστέρηση φέρνει προς ψήφιση τη νέα μελέτη για την πλατεία Παπάγου η σημερινή Δημοτική Αρχή του Δήμου Σύρου – Ερμούπολης

Χαμένη σεζόν και αναμονή για εγκρίσεις

Αναμονή για τις παρεμβάσεις έως ότου εγκρίνει την τεχνική μελέτη το Υπ. Πολιτισμού
Διαφήμιση

Ακόμη μία Πασχαλινή περίοδος, αλλά όπως διαφαίνεται και το προσεχές καλοκαίρι, βρίσκει τους επιχειρηματίες της πλατείας Παπάγου να έρχονται αντιμέτωποι με τα σοβαρά προβλήματα του σάπιου ξύλινου δαπέδου, επί του οποίου προσπαθούν να αναπτύξουν τα τραπεζοκαθίσματά τους, αφού η αντικατάστασή του, απαιτεί πρώτα την έγκριση συνολικά της μελέτης που αφορά στη μικρή πλατεία, από το Υπουργείο Πολιτισμού.

Η σοβαρή υπόθεση είχε απασχολήσει ξανά προ 6μηνου το δημόσιο διάλογο, οπότε και ήταν έτοιμη η νέα μελέτη για τη σημαντικά υποβαθμισμένη εικόνα της πλατείας Παπάγου, η οποία όμως, όπως αποδεικνύεται από τις σημερινές ενέργειες της Δημοτικής Αρχής, δεν προωθήθηκε τάχιστα προς το Υπουργείο Πολιτισμού, αφού έρχεται προς έγκριση στο αυριανό δημοτικό συμβούλιο.

Συνέπεια της 6μηνης καθυστέρησης είναι μία ακόμη “χαμένη” σεζόν για τους επιχειρηματίες που δραστηριοποιούνται σε αυτήν, αφού το φωτογραφικό υλικό αποτυπώνει με σαφήνεια το μέγεθος του προβλήματος που βιώνουν.

Υπενθυμίζεται ότι στα τέλη του περυσινού Οκτώβρη και στις αρχές Νοεμβρίου, το θέμα της προώθησης της νέας μελέτης είχε τεθεί προς συζήτηση σε δημόσια συνεδρίαση του δημοτικού συμβουλίου, με το σώμα να αποφασίζει τελικά την αναβολή της έγκρισης, ώστε πρωτίστως, να υπάρξει διαβούλευση με τους περιοίκους και τους άμεσα ενδιαφερόμενους επιχειρηματίες.

Η εν λόγω “κλειστή” διαβούλευση - σύμφωνα με τον Αντιδήμαρχο Τεχνικών Υπηρεσιών – έγινε “τις τελευταίες ημέρες” κι ως εκ τούτου, το θέμα έρχεται προς ψήφιση με σοβαρή χρονική καθυστέρηση που θα σημάνει νέο κύκλο προβλημάτων στους επιχειρηματίες, οι οποίοι θα κληθούν να εξυπηρετήσουν τους πελάτες τους, στις ίδιες συνθήκες.

Οι ίδιοι δε, κατά το παρελθόν, στο πλαίσιο συνέντευξης στην εφημερίδα είχαν εκφράσει την αγανάκτησή τους για τη συνολική εικόνα της πλατείας που βρίσκεται στο παραλιακό τμήμα της Ερμούπολης και την αντικρίζουν οι επισκέπτες από το πρώτο λεπτό που αποβιβάζονται στο νησί, ενώ είχαν διατυπώσει δικαιολογημένα και τα παράπονά τους για το γεγονός ότι πλήρωναν τέλη χρήσης του χώρου για τα τραπεζοκαθίσματά τους, χωρίς επί της ουσίας να “επιστρέφονται” έργα προς εκείνους, που θα βελτιώνουν την εικόνα της.

Πρέπει να υπενθυμιστεί πως, για τη συγκεκριμένη πλατεία οι διαδικασίες εκπόνησης νέας μελέτης “πυροδοτήθηκαν” από την απόφαση του Συμβουλίου της Επικρατείας (ΣτΕ) (υπ΄αριθμ. 912/2017), η οποία και γνωστοποιήθηκε στον Δήμο Σύρου – Ερμούπολης τον Ιούλιο του 2017, που προκλήθηκε παλαιότερα, μετά από προσφυγή ιδιώτη κι επιχειρηματία της περιοχής, αφού το εν λόγω έργο είχε ξεκινήσει να υλοποιείται, μετά από απόφαση του δημοτικού συμβουλίου και χωρίς τις απαραίτητες εγκρίσεις από το Υπουργείο Πολιτισμού.

Σημειώνεται δε, πως, το αυθαίρετο έργο είχε μείνει σχεδόν ημιτελές, με αρκετούς πολίτες να έχουν σχολιάσει το “αποτέλεσμα” εξαιρετικά αρνητικά, ενώ δημοσίως σε συνεδριάσεις, είχε διατυπωθεί η άποψη πως πρόκειται για ένα μεγάλο τμήμα τσιμέντου στην παραλιακή ζώνη της Ερμούπολης.

Πλέον, για την προώθηση του συγκεκριμένου έργου, απαιτείται η έγκριση του σχετικού φακέλου με την τεχνική μελέτη και όλα τα απαραίτητα στοιχεία από το Υπουργείο Πολιτισμού, με την πλευρά του οποίου αν και είχε πει ο Δήμαρχος, Γιώργος Μαραγκός πως θα έχει επαφή για το θέμα, ωστόσο, το διάστημα που μεσολάβησε, δηλαδή από την τελευταία δημόσια αναφορά στην υπόθεση της πλατείας Παπάγου ως και σήμερα, ο ίδιος δεν έχει προβεί σε καμία σχετική πληροφόρηση.

Ερωτηθείς ο αρμόδιος Αντιδήμαρχος μάλιστα, γνωστοποίησε πως δεν γνωρίζει καμία τέτοια ενέργεια, αφού έπρεπε να πραγματοποιηθεί πρώτα η διαβούλευση.

Με την προσθήκη... του αγάλματος του Μάρκου Βαμβακάρη

Όπως είχε αναφέρει στο τελευταίο δημοσίευμά της η “Κοινή Γνώμη” αναφορικά με την εν λόγω μελέτη, στην πλατεία Παπάγου, προβλέπεται – βάσει του περιεχομένου της – μίας σειρά παρεμβάσεων, καθώς το εν λόγω τμήμα θα υποδεχθεί και ένα άγαλμα του Μάρκου Βαμβακάρη, το κόστος του οποίου καλύπτει η οικογένεια του μεγάλου ρεμπέτη.

Δίνοντας απαντήσεις για τον χρόνο της συζήτησης - του σοβαρού θέματος της μελέτης για την πλατεία Παπάγου - στο δημοτικό συμβούλιο, ο Αντιδήμαρχος, Φραγκίσκος Βακόνδιος εξήγησε πως, “Δεν είχε την έγκριση από το Υπουργείο Πολιτισμού και μετά από την απόφαση του Δικαστηρίου που αναφέρει ότι δεν είχαμε έγκριση από το Υπουργείο Πολιτισμού, αποστέλλουμε τώρα τη μελέτη μαζί με την προσθήκη για το άγαλμα του Μάρκου Βαμβακάρη, που είχε εγκριθεί από το δημοτικό συμβούλιο, προς έγκριση από το Υπουργείο Πολιτισμού”.

Ερωτηθείς για το αν υπήρξε επικοινωνία με το συγκεκριμένο Υπουργείο κατά τη διάρκεια αυτού του διαστήματος, ώστε να ωφεληθεί ο Δήμος σε χρόνο και παρατηρήσεις, ο κ. Βακόνδιος απάντησε αρνητικά.

Αφού υπενθύμισε πως στην τελευταία συνεδρίαση του δημοτικού συμβουλίου για το θέμα, προ εξαμήνου, είχε αποφασιστεί η απόσυρσή του, γνωστοποίησε πως, “δεν γνωρίζει να ακολούθησε καμία επαφή με το Υπουργείο Πολιτισμού”.

“Είχε αποσυρθεί το θέμα από το δημοτικό συμβούλιο για να γίνει η διαβούλευση με τους κατοίκους και τους επιχειρηματίες της περιοχής. Στο συγκεκριμένο συμβούλιο εγώ ήμουν εκτός Σύρου” ανέφερε χαρακτηριστικά, ενώ κλήθηκε παρακάτω να μιλήσει για την ενημέρωση των κατοίκων και των επιχειρηματιών.

Διαβούλευση και ενστάσεις

Συγκεκριμένα, σχετικά με τη διαβούλευση, ο κ Βακόνδιος ανέφερε τα εξής: “Τις τελευταίες μέρες στην αίθουσα του Δημοτικού Συμβουλίου έγινε μία παρουσίαση της μελέτης με τους πολίτες και τους καταστηματάρχες και τους κατοίκους της περιοχής. Θέλαμε να ξέρουν κι εκείνοι και το ιστορικό της μελέτης και το ιστορικό του έργου από το παρελθόν μέχρι τώρα”. Πρόσθεσε δε, πως, “Ουσιαστικά δεν προτείνονται πολλές αλλαγές. Υπάρχουν όμως φθορές στην υφιστάμενη πλατεία”, οι οποίες όπως φωτογράφισε θα πρέπει να αποκατασταθούν.

Διαφήμιση

Ερωτηθείς για έκφραση διαφωνιών ή ενστάσεων, σχολίασε πως, “Σίγουρα υπάρχουν ενστάσεις και διαφωνίες και ως προς το σχέδιο της πλατείας, η οποία είχε εκπονηθεί από ιδιωτικό γραφείο τότε και δεν είχε ολοκληρωθεί στο σύνολό της (προσφυγή). Παρόλα αυτά πρέπει να αποσταλεί προς έγκριση στο Υπουργείο Πολιτισμού τη δεδομένη στιγμή, με δεδομένο και το έγγραφο που έχουμε από το Δικαστήριο, ότι πρέπει μέχρι το τέλος Μαΐου – αρχές Ιουνίου να έχει ενεργήσει ο Δήμος”.

Κληθείς να διευκρινίσει μάλιστα αν ο Δήμος ανταποκρίνεται στους χρόνους που είχε προσδιορίσει το ΣτΕ, υπήρξε συγκεκριμένος: “Ναι. Θα πρέπει να συμμορφωθούμε με την απόφαση του Δικαστηρίου. Αυτή η διαδικασία είχε εγκριθεί και από το δημοτικό συμβούλιο στο παρελθόν και τη δεδομένη στιγμή πρέπει να αποφασίσουμε και για την έγκριση της μελέτης και να αποσταλεί στο Υπουργείο Πολιτισμού”.

Πρέπει να προστεθεί πως οι κύριες ενστάσεις μεμονωμένων επιχειρηματιών της περιοχής, αφορούν στη χωροθέτηση του αγάλματος, για το οποίο όμως, ο γλύπτης του, κ. Πέτρος Γεωργαρίου, κατόπιν αυτοψίας στο σημείο, έχει υποδείξει την καταλληλότερη θέση, η οποία και προσδιορίζεται στη μελέτη.

Καθ΄ υπόδειξη του γλύπτη η σωστή χωροθέτηση του αγάλματος

Δεδομένης της ανησυχίας των επιχειρηματιών για τα δάπεδα που έχουν σαπίσει, έχουν καταστραφεί, έχουν τρυπήσει κι έχουν αποκολληθεί από τις θέσεις τους, ρωτήθηκε αν προβλέπεται συνολικά η αντικατάστασή τους.

Πρέπει να εγκριθούν πρώτα και αν εγκριθούν από το Υπουργείο Πολιτισμού, θα γίνει έργο και θα αντικατασταθούν. Αριστερά προβλέπεται η καθαίρεση του τμήματος και η τοποθέτηση του αγάλματος” σημείωσε, επαναλαμβάνοντας πως, “Για λόγους ασφαλείας κάποια δάπεδα, κάποια ξύλα, μπορεί και να φτιαχτούν αν τίθεται θέμα ασφάλειας”. Ωστόσο, ερωτηθείς ξανά για το αν και για τα υλικά πρέπει να δοθεί το “πράσινο φως” από το Υπουργείο Πολιτισμού, απάντησε: “Ναι, για όλα θα δώσει την έγκριση το Υπουργείο”.

Εκτός των ανωτέρω, ο κ. Βακόνδιος διευκρίνισε πως, το εν λόγω Υπουργείο θα πρέπει να δώσει την έγκρισή του και για το άγαλμα, αφού θα τοποθετηθεί σε ιστορικό τόπο.

“Πρέπει να εγκριθεί – για να τοποθετηθεί - από το Υπουργείο Πολιτισμού” ανέφερε σχετικά, ενώ μιλώντας αναλυτικότερα για τη χωροθέτησή του στο μέσον του τμήματος της νοτιοδυτικής πλευράς, σημείωσε πως: “Η τοποθέτηση (σσ. χωροθέτηση) έγινε με υπόδειξη του γλύπτη. Θεώρησε ότι είναι το καλύτερο σημείο για να τοποθετηθεί και η Τεχνική Υπηρεσία ουσιαστικά εφάρμοσε την πρόταση του γλύπτη”.

Αν και ο κ. Βακόνδιος δεν έδωσε πληροφορίες για το άγαλμα και αν αυτό έχει ολοκληρωθεί, ωστόσο, σύμφωνα με το ρεπορτάζ της “Κοινής Γνώμης”, αυτό έχει φιλοτεχνηθεί και αποτυπώνεται στη φωτογραφία του παρόντος άρθρου.

Άγνωστος ο χρόνος της απάντησης του ΥΠΠΟ

Δεδομένου ότι συνηθίζεται – δυστυχώς - να δαπανάται αρκετός χρόνος για τη λήψη απόφασης από το Υπουργείο Πολιτισμού αναφορικά με υποθέσεις που αφορούν ιστορικούς τόπους, όπως η Ερμούπολη, ο κ. Βακόνδιος υπήρξε λακωνικός σχετικά με τη στάση της αρμόδιας πλευράς.

“Το Υπουργείο Πολιτισμού θα πρέπει να ελέγξει όπως κάνει σε κάθε περίπτωση, να εγκρίνει, να απορρίψει, να προτείνει αλλαγές επί των σχεδίων της συγκεκριμένης πλατείας” ανέφερε, ενώ σχολίασε πως, “Δεν μπορούμε να γνωρίζουμε την απόφαση του Υπουργείου Πολιτισμού” κι ως εκ τούτου, τον χρόνο της έκδοσής της.

Αφού ανάψει το “πράσινο φως”, θα ακολουθήσει ο διαγωνισμός για το έργο

Σχετικά με την κάλυψη των δαπανών για τις παρεμβάσεις στην πλατεία Παπάγου, ο Αντιδήμαρχος διευκρίνισε πως, “(σσ. Τα χρήματα) θα τα διαθέσει ο Δήμος από τη στιγμή που θα έχουμε την έγκριση του Υπουργείου Πολιτισμού. Ο Δήμος θα διαθέσει χρήματα για την αναβάθμιση, τη συντήρηση της πλατείας”.

Σχετικά με το αν θα γίνουν επεμβάσεις στη μικρή πλατεία στο μέσον του καλοκαιριού, στην περίπτωση που ευτυχήσει... ο Δήμος να λάβει άμεσα απάντηση, υπήρξε συγκεκριμένος. “Όχι. Θα πρέπει να περιμένουμε την έγκριση, την προώθηση του διαγωνισμού και μετά να μπούνε στο Τεχνικό Πρόγραμμα του Δήμου (σσ. τα χρήματα) για να υλοποιηθούν. Θα γίνει ο διαγωνισμός του έργου πρώτα και θα υλοποιηθούν. Θέλει χρόνο”.

Κατά συνέπεια έκλεισε την ενημέρωσή του, απαντώντας στο αν υπάρχουν αυτά τα χρήματα σήμερα στο ταμείο του Δήμου. “Επειδή θέλει εγκρίσεις, υπάρχει ένας οικονομικός προϋπολογισμός, για το ποσό και θα πρέπει να το ανακτήσει από τους πόρους του για να το κάνει. Αν έχουμε έγκριση από το Υπουργείο Πολιτισμού σύντομα, θα πρέπει να γίνουν κάποιες αναμορφώσεις για να συμπεριληφθεί κι αυτό στον όλο σχεδιασμό του Τεχνικού Προγράμματος”.

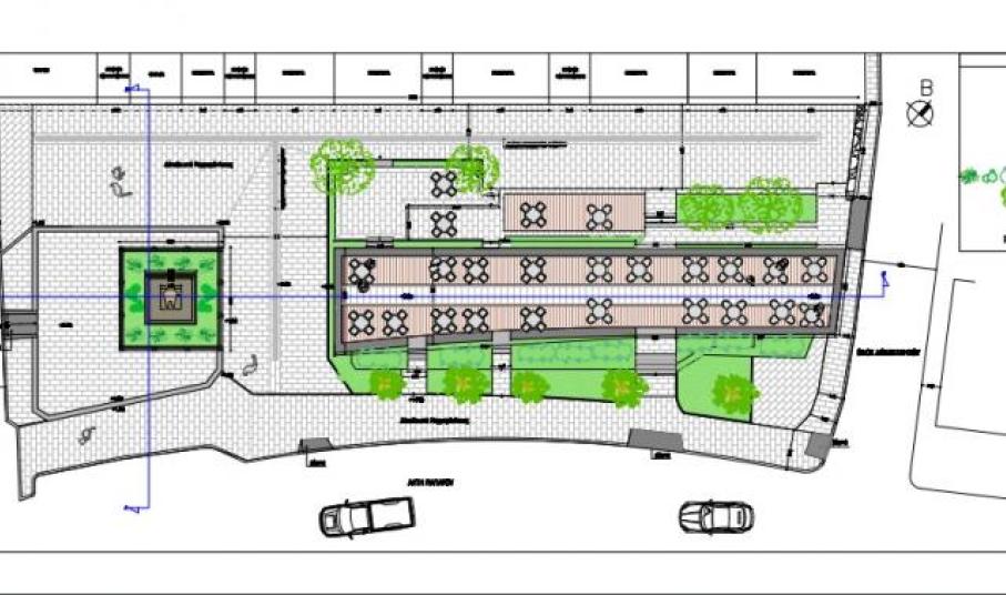
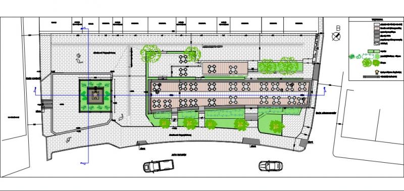
Οι βασικές παρεμβάσεις βάσει μελέτης

Οι βασικές παρεμβάσεις στην περιοχή μελέτης είναι: η καθαίρεση του υπερυψωμένου τμήματος σε σχήμα τραπεζίου στη νοτιοδυτική πλευρά της πλατείας, η κατάργηση των υφιστάμενων παρτεριών γύρω από το παραπάνω τμήμα, η τοποθέτηση του αγάλματος και της βάσης του σύμφωνα με το σχέδιο του γλύπτη, συνοδευόμενη από όλες τις απαραίτητες εργασίες εκσκαφών, επιχώσεων, σκυροδετήσεων και επιστρώσεων, η τοποθέτηση μαρμάρινων πλακών ιδίου μεγέθους, σχήματος και χρώματος με τις υφιστάμενες, γύρω από την περιοχή του αγάλματος, η αντικατάσταση του δαπέδου από λωρίδες φυσικής ξυλείας, με σανίδες συνθετικής ξυλείας (deck) στη βορειοανατολική πλευρά της πλατείας  η αντικατάσταση όλων των φθαρμένων και σπασμένων μαρμαροπλακών, η επέκταση των γραμμών στο υπάρχον αποχετευτικό δίκτυο, για τη σωστή απορροή των ομβρίων υδάτων και η εγκατάσταση και τοποθέτηση φωτιστικών για τον φωτισμό και την αισθητική ανάδειξη του αγάλματος.