Ρούσσος Ι. Γ.
Πλατεία Παπάγου
“Λουκέτο” στην πρόσβαση οχημάτων
- Πέμπτη, 6 Ιουνίου, 2024 - 06:14
- 0 Σχόλια
Παρελθόν αναμένεται να αποτελέσει η κεντρική ράμπα της πλατείας Παπάγου, καθώς συστηματικά εισέρχονται οχήματα με ό,τι αυτό συνεπάγεται για την εικόνα της και τη λειτουργία των επιχειρήσεων εστίασης.
Πρόκειται για μία απόφαση που πήρε το Δ.Σ. του Λιμενικού Ταμείου Σύρου στην πρόσφατη...
Παραφωνία… στη γενικότερη ποιοτική ανάπλαση
- Πέμπτη, 13 Απριλίου, 2023 - 06:14
- 0 Σχόλια
Σημαντικές και άκρως απαραίτητες βελτιωτικές παρεμβάσεις δέχεται η πλατεία Παπάγου με μέριμνα του Δήμου Σύρου – Ερμούπολης, όπου και αντικαθίστανται τα παλαιά δάπεδα που δημιουργούσαν προβλήματα στις επιχειρήσεις, με μοναδική “παραφωνία” στην περιοχή, να αποτελεί η ξύλινη “αψίδα”.
...
Ανανεώνεται η όψη της πλατείας Παπάγου
- Τετάρτη, 5 Απριλίου, 2023 - 06:14
- 0 Σχόλια
“Οργασμός” εργασιών επικρατεί στην πλατεία Παπάγου τις τελευταίες ημέρες και με ευθύνη του Δήμου Σύρου – Ερμούπολης, προκειμένου ο εν λόγω χώρος να αλλάξει και να βελτιώσει την όψη του.
Συγκεκριμένα, προ ημερών απομακρύνθηκαν όλα τα παλαιά και κατεστραμμένα ξύλινα δάπεδα, προκειμένου τα...
Προσπάθεια ουσιαστικής λύσης για τα δάπεδα
- Πέμπτη, 1 Δεκεμβρίου, 2022 - 06:14
- 0 Σχόλια
Λύσεις ουσιαστικές και οριστικές για τα δάπεδα της πλατείας Παπάγου αναζητά η Δημοτική Αρχή, σύμφωνα με όσα γνωστοποίησε ο Αντιδήμαρχος Τεχνικών Υπηρεσιών, Μηνάς Αληφραγκής σε πρόσφατη συνεδρίαση του Δημοτικού Συμβουλίου.
Η κατάσταση στα ξύλινα δάπεδα έχει διαμορφωθεί εξαιρετικά...
Αναβαθμίζεται αισθητικά η πλατεία Παπάγου
- Τετάρτη, 15 Ιουνίου, 2022 - 06:14
- 0 Σχόλια
Εκτεταμένες εργασίες φροντίδας των παρτεριών που περιβάλλουν το τμήμα της πλατείας Παπάγου επί του οποίου τοποθετήθηκε το άγαλμα του Μάρκου Βαμβακάρη ανέπτυξε η Υπηρεσία Καθαριότητας του Δήμου Σύρου – Ερμούπολης, χθες το πρωί.
Εν όψει της εκδήλωσης των αποκαλυπτηρίων του αγάλματος το...
Αποκατάσταση δαπέδου εν όψει τοποθέτησης του αγάλματος του Μάρκου Βαμβακάρη
- Τετάρτη, 6 Απριλίου, 2022 - 06:14
- 0 Σχόλια
Η αντικατάσταση των κατεστραμμένων δαπέδων που θα περιβάλλουν το άγαλμα του Μάρκου Βαμβακάρη στην πλατεία Παπάγου είναι μία σημαντική παρέμβαση η οποία πρέπει να υλοποιηθεί, εν όψει των εγκαινίων για την τοποθέτησή του.
'Oπως έχει αναφερθεί και κατά το παρελθόν, όλο το κόστος για το...
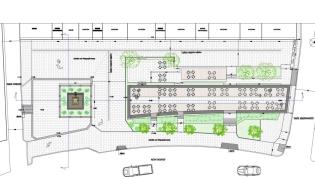
Διαμόρφωση βάσης για την τοποθέτηση του αγάλματος του Μ. Βαμβακάρη
- Τετάρτη, 23 Φεβρουαρίου, 2022 - 06:14
- 0 Σχόλια
Την πλήρη φροντίδα για τη δημιουργία και μεταφορά του γλυπτού αγάλματος του Μάρκου Βαμβακάρη έχει αναλάβει η οικογένεια του Πατριάρχη του Ρεμπέτικου και ειδικότερα ο γιος του, Βασίλης Βαμβακάρης, όπως είναι γνωστό τα τελευταία δύο χρόνια.
Σε αυτήν την κατεύθυνση, υπήρξε μέριμνα για τον...
Νέα δάπεδα στην πλατεία Παπάγου
- Δευτέρα, 14 Φεβρουαρίου, 2022 - 06:14
- 0 Σχόλια
Σε αντικαταστάσεις των σχεδόν πλήρως κατεστραμμένων δαπέδων στην πλατεία Παπάγου προχώρησε ο Δήμος Σύρου – Ερμούπολης, προκειμένου να απαντήσει στην πράξη στα σοβαρά προβλήματα που αντιμετώπιζαν επί χρόνια, οι επιχειρηματίες που δραστηριοποιούνταν και παραμένουν στην περιοχή.
Ουσιαστικά...
Αναβαθμίζεται η πλατεία Παπάγου με το άγαλμα του Μάρκου Βαμβακάρη
- Παρασκευή, 18 Ιουνίου, 2021 - 06:19
- 0 Σχόλια
Την εικόνα που αρμόζει σε έναν ανοικτό χώρο, ο οποίος βρίσκεται σε παραλιακή ζώνη αναμένεται να λάβει η πλατεία Παπάγου στην Ερμούπολη, καθώς μετά από τη νομιμοποίηση της υφιστάμενης κατασκευής της, προγραμματίζεται να τοποθετηθεί και το άγαλμα του Πατριάρχη του Ρεμπέτικου, Μάρκου Βαμβακάρη....
Προετοιμασία της εστίασης για την αξιοποίηση εξωτερικών χώρων
- Πέμπτη, 18 Φεβρουαρίου, 2021 - 06:20
- 0 Σχόλια
Τις προϋποθέσεις επαναλειτουργίας του κλάδου της εστίασης έρχεται να ενισχύσει το Λιμενικό Ταμείο Σύρου, σε τοπικό επίπεδο, εγκρίνοντας τη δυνατότητα εργασιών για την τοποθέτηση ανεμοφρακτών στα τμήματα ανάπτυξης τραπεζοκαθισμάτων, ώστε οι επιχειρήσεις – όταν δοθεί το “πράσινο φως” από την...
Νομιμοποίηση της υφιστάμενης κατάστασης
- Πέμπτη, 17 Οκτωβρίου, 2019 - 06:19
- 0 Σχόλια
Θετική εισήγηση αναφορικά με το θέμα της νομιμοποίησης της υφιστάμενης κατάστασης στην πλατεία Παπάγου πραγματοποίησε η Υπηρεσία της Εφορείας Νεοτέρων Μνημείων, το Συμβούλιο της οποίας συνεδρίασε προχθές το πρωί, δίνοντας το “πράσινο φως” στον Δήμο Σύρου – Ερμούπολης, αναφορικά με την υποχρέωση...
Αναμονή για την απόφαση του Υπ. Πολιτισμού
- Τετάρτη, 25 Σεπτεμβρίου, 2019 - 06:19
- 0 Σχόλια
Την απόφαση του Υπουργείου Πολιτισμού περιμένει ο Δήμος Σύρου – Ερμούπολης αναφορικά με τη μελέτη που εκπόνησε η Τεχνική Υπηρεσία - στην προηγούμενη θητεία σχετικά - για την υπόθεση της παράνομης – ως σήμερα - πλατείας Παπάγου, καθώς το Τριμελές Συμβούλιο Συμμόρφωσης του Συμβουλίου της...
Ξεκίνησε η αποκατάσταση
- Δευτέρα, 15 Ιουλίου, 2019 - 06:14
- 0 Σχόλια
Το αποτέλεσμα των εργασιών της αντικατάστασης του ξύλινου φθαρμένου δαπέδου της πλατείας Παπάγου αναμένουν οι επιχειρηματίες της περιοχής, οι οποίοι και δραστηριοποιούνται στο συγκεκριμένο σημείο επί πολλά έτη, μετά από μεγάλη ταλαιπωρία.
Πρόκειται για μία εξέλιξη που οι ίδιοι θέλησαν...
Διευκόλυνση στη λειτουργία των επιχειρήσεων
- Τετάρτη, 3 Ιουλίου, 2019 - 06:20
- 0 Σχόλια
Ανακούφιση στην επιχειρηματική λειτουργία τους αναμένουν να δουν οι επιχειρηματίες της πλατείας Παπάγου, με φόντο την αντικατάσταση του φθαρμένου και σχεδόν πλήρως κατεστραμμένου δαπέδου, επί του οποίου αναπτύσσουν τα τραπεζοκαθίσματά τους, αφού η Τεχνική Υπηρεσία προχώρησε στην προμήθεια νέου “...
Αδικαιολόγητες καθυστερήσεις για την πλατεία Παπάγου
- Παρασκευή, 3 Μαΐου, 2019 - 06:20
- 0 Σχόλια
Τις ρητές κατευθύνσεις συμμόρφωσης από το ΣτΕ για την υπόθεση της πλατείας Παπάγου παραβλέπει προκλητικά η Δημοτική Αρχή του Δήμου Σύρου – Ερμούπολης, προσθέτοντας αδικαιολόγητη καθυστέρηση στην υλοποίηση παρεμβάσεων (αποκατάστασης, συντήρησης και τοποθέτησης αγάλματος του Μ. Βαμβακάρη) στον...
Χαμένη σεζόν και αναμονή για εγκρίσεις
- Τρίτη, 16 Απριλίου, 2019 - 06:20
- 0 Σχόλια
Ακόμη μία Πασχαλινή περίοδος, αλλά όπως διαφαίνεται και το προσεχές καλοκαίρι, βρίσκει τους επιχειρηματίες της πλατείας Παπάγου να έρχονται αντιμέτωποι με τα σοβαρά προβλήματα του σάπιου ξύλινου δαπέδου, επί του οποίου προσπαθούν να αναπτύξουν τα τραπεζοκαθίσματά τους, αφού η αντικατάστασή του,...
Αλλάζει εικόνα η πλατεία Παπάγου
- Τρίτη, 30 Οκτωβρίου, 2018 - 06:20
- 0 Σχόλια
Ολοκληρώθηκε η εκπόνηση της μελέτης για την πλατεία Παπάγου στην παραλιακή ζώνη της Ερμούπολης, προκειμένου o χώρος να αποκτήσει τη νομιμοποίηση που απαιτείται να έχει, με τον σχετικό φάκελο να οδεύει προς το Υπουργείο Πολιτισμού, το οποίο και θα αξιολογήσει τις παρεμβάσεις που μελετήθηκαν από...
Εν αναμονή της μελέτης για την πλατεία Παπάγου
- Πέμπτη, 24 Μαΐου, 2018 - 06:20
- 0 Σχόλια
Αναστάτωση έχει προκληθεί σε κάθε ενδιαφερόμενη πλευρά που συνδέεται με την πλατεία Παπάγου στο παραλιακό μέτωπο της Ερμούπολης, από τις αυθαίρετες ενέργειες του τ. Δήμου Ερμούπολης, ο οποίος με μία απλή απόφαση δημοτικού συμβουλίου και χωρίς εγκρίσεις από το Υπουργείο Πολιτισμού είχε προβεί...
«Ο Μάρκος πρέπει να ενώνει τους Συριανούς»
- Τετάρτη, 20 Δεκεμβρίου, 2017 - 06:18
- 0 Σχόλια
Σε κλίμα ομοθυμίας μεταξύ των μελών του δημοτικού συμβουλίου διεξήχθη η συζήτηση για τη δωρεά και τοποθέτηση αγάλματος του Μάρκου Βαμβακάρη στο λιμάνι της Ερμούπολης, πρόταση του υιού του, Βασίλη Βαμβακάρη, η οποία παρά τις -μετρημένες στα δάκτυλα του ενός χεριού- «παραφωνίες» εγκρίθηκε ομόφωνα...
“Ας μας πουν τί πληρώνουμε;”
- Δευτέρα, 27 Μαρτίου, 2017 - 06:17
- 0 Σχόλια
Ο φτωχός συγγενής του παραλιακού μετώπου της Ερμούπολης παραμένει η πλατεία Παπάγου, με τους επιχειρηματίες που δραστηριοποιούνται επί αυτής, αλλά και πλησίον της, να εκφράζουν δημόσια μέσω της “Κοινής Γνώμης” την αγανάκτησή τους, αναφορικά με την αδιαφορία της Δημοτικής Αρχής σχετικά με το...
























Μ.Η.Τ. 232111