Αναβαθμίζεται η πλατεία Παπάγου με το άγαλμα του Μάρκου Βαμβακάρη
- Παρασκευή, 18 Ιουνίου, 2021 - 06:19
- / Eνημέρωση: 18 Ιουν. 2021 - 17:00
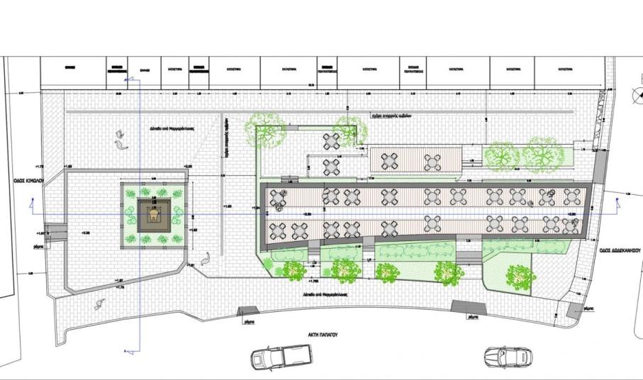
Την εικόνα που αρμόζει σε έναν ανοικτό χώρο, ο οποίος βρίσκεται σε παραλιακή ζώνη αναμένεται να λάβει η πλατεία Παπάγου στην Ερμούπολη, καθώς μετά από τη νομιμοποίηση της υφιστάμενης κατασκευής της, προγραμματίζεται να τοποθετηθεί και το άγαλμα του Πατριάρχη του Ρεμπέτικου, Μάρκου Βαμβακάρη.
Πρόκειται για μία σημαντική εξέλιξη για την οποία μερίμνησε η Δημοτική Αρχή σε επαφή της με το Υπουργείο Πολιτισμού, ώστε να υπάρξει η απαιτούμενη έγκριση για την τοποθέτηση του αγάλματος, το κόστος του οποίου θα αναλάβει ο εφοπλιστής, Βασίλης Βαμβακάρης και η οικογένειά του, σύμφωνα με την πρόθεσή τους, η οποία είναι γνωστή εδώ και καιρό.
Πλέον δρομολογούνται και οι τελευταίες ενέργειες από την πλευρά του Δήμου, ώστε να προχωρήσει η τοποθέτηση του αγάλματος που θα κοσμήσει το παραλιακό μέτωπο και θα “φωτίζει” στους επισκέπτες μία σημαντική πλευρά της μουσικής ιστορίας του νησιού λόγω του έργου που άφησε πίσω του ο Μάρκος Βαμβακάρης. Συγκεκριμένα, απομένει η επικοινωνία με τον γλύπτη ώστε να γίνει αλλαγή και αφαίρεση της βάσης του αγάλματος, από το κυρίως “σώμα”, καθώς αυτό θα τοποθετηθεί σε τμήμα της πλατείας που δεν θα καθαιρεθεί και ως εκ τούτου, η μαρμάρινη προτομή θα διακρίνεται επαρκώς. Επιπλέον, ο Αντιδήμαρχος Τεχνικών Υπηρεσιών, Μηνάς Αληφραγκής μιλώντας στην “Κοινή Γνώμη” εξήγησε πως αποτελεί ιδιαίτερη χαρά για τον Δήμο και τους Συριανούς μία τέτοια εξέλιξη, αφού θα αναβαθμιστεί σημαντικά η πλατεία Παπάγου, που αποτελεί και την πρώτη εικόνα που αντικρίζουν οι επισκέπτες αφότου αποβιβαστούν στο λιμάνι της Ερμούπολης.
Υπενθυμίζεται πως επί πολλά έτη, ο Δήμος είχε να αντιμετωπίσει προσφυγές και δικαστήρια για την κατασκευή της συγκεκριμένης πλατείας, αφού ουσιαστικά ήταν παράνομη, καθώς δεν είχε λάβει τις απαιτούμενες εγκρίσεις από το Υπουργείο Πολιτισμού, όταν υλοποιήθηκε ως έργο, δηλαδή στη θητεία του Γιάννη Δεκαβάλλα.
Σήμερα και σε κάθε περίπτωση με ισχυρό “χαρτί” τη νομιμοποίησή της, ο Δήμος με την πολύτιμη αρωγή της οικογένειας του μεγάλου Ρεμπέτη, θα βελτιώσει σημαντικά και ουσιαστικά τη συνολική εικόνα της.
Χωρίς τη βάση, αλλά σε υπερυψωμένο τμήμα της πλατείας
Ειδικότερα για το σχέδιο του αγάλματος με σκοπό την τοποθέτησή του επί της πλατείας Παπάγου, ο κ. Αληφραγκής εξήγησε πως έπρεπε να αποφανθεί σχετικά το Υπουργείο Πολιτισμού, ώστε να ακολουθήσουν οι ενέργειες που θα οδηγήσουν στην εγκατάστασή του στο παραλιακό μέτωπο της Ερμούπολης.
“Είχαμε την έγκριση από την πλευρά του Υπουργείου Πολιτισμού μαζί με την πλατεία Παπάγου που είχε νομιμοποιηθεί. Η πλατεία Παπάγου παραμένει ως έχει τελικά και δεν χρειάζεται να γίνει κάτι ιδιαίτερο. Εγκρίνει ουσιαστικά το Υπουργείο την τοποθέτηση της προτομής του Μάρκου Βαμβακάρη, αλλά χωρίς της βάση του” διευκρινίζει κατηγορηματικά ο Αντιδήμαρχος, εξηγώντας ουσιαστικά πως η μη τοποθέτηση της βάσης του, προκύπτει από το γεγονός πως κανένα πλέον τμήμα της πλατείας δεν καθαιρείται.
Σχετικά με τις επαφές του Δήμου για την ανωτέρω εξέλιξη με τις πλευρές του γλύπτη και της οικογένειας του εφοπλιστή Βασίλη Βαμβακάρη, ο ίδιος υπήρξε σαφής: “Θα στείλουμε την απόφαση του Υπουργείου Πολιτισμού και στον γλύπτη και στον κ. Βαμβακάρη ώστε να κάνει ο πρώτος τις τροποποιήσεις που χρειάζονται και να προχωρήσουμε. Μιλάμε για τη συγκεκριμένη περιοχή της πλατείας Παπάγου και εφόσον υπάρχει ενδιαφέρον από τον κ. Βαμβακάρη. Γνωρίζουμε για την πρόθεσή του να χρηματοδοτήσει την τοποθέτηση του αγάλματος” εξήγησε ο κ. Αληφραγκής, εκφράζοντας την ικανοποίησή του για το γεγονός ότι προχωρά η αναβάθμιση της μικρής πλην όμως κεντρικής και πολυσυζητημένης πλατείας Παπάγου.
Συνολικές συντηρήσεις της πλατείας
Ερωτηθείς ειδικότερα για τον χρόνο επικοινωνίας με τον γλύπτη, ο ίδιος υπήρξε συγκεκριμένος: “Άμεσα θα επικοινωνήσουμε με τον γλύπτη ώστε να κάνει τις τροποποιήσεις και θα το προγραμματίσουμε σε συνεννόηση μαζί του” εξήγησε, διευκρινίζοντας μάλιστα πως, “Προφανώς και θα παραμείνει το υπερυψωμένο τμήμα της πλατείας και θα τοποθετηθεί επάνω εκεί η προτομή, δηλαδή το άγαλμα για τον Μάρκο Βαμβακάρη ώστε να φαίνεται σαφώς”.
Σε συνέχεια των ανωτέρω και αναφορικά με το θέμα των παρεμβάσεων επί της πλατείας για τη συνολική φροντίδα της, καθώς σήμερα αρκετά τμήματά της παρουσιάζουν φθορές, ο Αντιδήμαρχος ενημέρωσε σχετικά με προγραμματισμένες συντηρήσεις.
“Προγραμματίζουμε να αλλάξουμε τα ντεκ, να μπει επαρκής φωτισμός και να προχωρήσουμε σε ήπιες συντηρήσεις. Χρειάζεται ένα εύλογο χρονικό διάστημα όμως, καθώς δεν μπορούμε να προχωρήσουμε από τη μία μέρα στην άλλη” δήλωσε με σαφήνεια.
Απλή ενημέρωση του Υπ. Πολιτισμού
Δεδομένης της μικρής αλλαγής που θα δεχθεί η μελέτη που περιλαμβάνει το άγαλμα και εστιάζεται στη μη συμπερίληψη της βάσης αυτού, ο κ. Αληφραγκής ρωτήθηκε αν εν συνεχεία, θα απαιτηθεί νέα έγκριση από το Υπουργείο Πολιτισμού.
Δηλώνοντας πρωτίστως πως, “ο Δήμος θα είναι σε συνεννόηση και με τον γλύπτη και με τον κ. Βαμβακάρη ώστε να γίνει η τροποποίηση της μελέτης και να προχωρήσουμε χωρίς τη βάση του αγάλματος”, γνωστοποίησε τέλος πως από την πλευρά του Υπουργείου “απλά έχουν ζητήσει να γίνει μία ενημέρωση από εμάς. Δεν θα έχουμε άλλες καθυστερήσεις”.
- Εισέλθετε στο σύστημα ή εγγραφείτε για να υποβάλετε σχόλια
Διαβάστε ακόμα
- Διαμόρφωση βάσης για την τοποθέτηση του αγάλματος του Μ. Βαμβακάρη
23 Φεβ. 2022 - 6:14 - Προετοιμασία της εστίασης για την αξιοποίηση εξωτερικών χώρων
18 Φεβ. 2021 - 6:20 - Νομιμοποίηση της υφιστάμενης κατάστασης
17 Οκτ. 2019 - 6:19 - Αναμονή για την απόφαση του Υπ. Πολιτισμού
25 Σεπ. 2019 - 6:19 - Διευκόλυνση στη λειτουργία των επιχειρήσεων
3 Ιουλ. 2019 - 6:20






Μ.Η.Τ. 232111