Αλλάζει εικόνα η πλατεία Παπάγου
- Τρίτη, 30 Οκτωβρίου, 2018 - 06:20
Ολοκληρώθηκε η εκπόνηση της μελέτης για την πλατεία Παπάγου στην παραλιακή ζώνη της Ερμούπολης, προκειμένου o χώρος να αποκτήσει τη νομιμοποίηση που απαιτείται να έχει, με τον σχετικό φάκελο να οδεύει προς το Υπουργείο Πολιτισμού, το οποίο και θα αξιολογήσει τις παρεμβάσεις που μελετήθηκαν από την Τεχνική Υπηρεσία του Δήμου Σύρου – Ερμούπολης, με σκοπό να ανάψει το “πράσινο φως” για τις αλλαγές που απαιτείται να υλοποιηθούν.
Η σοβαρή υπόθεση των αυθαίρετων παρεμβάσεων στο εν λόγω τμήμα του παραλιακού μετώπου με ευθύνη του τ. Δήμου Ερμούπολης, απασχολεί έντονα από το 2006 και μετά, οπότε και επιχείρηση που βρίσκεται κοντά στην πλατεία προχώρησε σε προσφυγή στο Συμβούλιο της Επικρατείας (ΣτΕ) προκειμένου να σταματήσει τις όποιες παρεμβάσεις είχαν “τρέξει”, αφού το έργο – εντός του ιστορικού τόπου - είχε ξεκινήσει να υλοποιείται – μόνον - με δημοτική απόφαση και χωρίς τις απαραίτητες εγκρίσεις του Υπουργείου Πολιτισμού.
Η νυν Δημοτική Αρχή, μετά από την έκδοση της σχετικής απόφασης του ΣτΕ (υπ΄αριθμ. 912/2017) και τη γνωστοποίησή της στον Δήμο Σύρου – Ερμούπολης τον Ιούλιο του 2017, όφειλε να βρει τρόπο να συμμορφωθεί με τα προβλεπόμενα, με τον “βέλτιστο τρόπο” όπως χαρακτηριστικά είχε αναφέρει ο Δήμαρχος, Γιώργος Μαραγκός σε δημόσια συνεδρίαση του περασμένου Μαΐου (2018) να είναι η εκπόνηση νέας μελέτης.
Μάλιστα, στην κατεύθυνση – όπως ο ίδιος είχε τονίσει – πως, “ο Δήμος δεν υποχρεώνεται σε άμεση κατεδάφιση των παράνομων κατασκευών”, αποφασίστηκε από το νυν δημοτικό συμβούλιο η σύνταξη της παρούσας νέας μελέτης, στο περιεχόμενο της οποίας ο Δήμος συμμορφώνεται με την απόφαση του ΣτΕ και προβλέπει την κατεδάφιση ενός τμήματος της πλατείας Παπάγου, με το κομμάτι που αφορά στα τραπεζοκαθίσματα, σχεδόν στο σύνολό του, να παραμένει ως υφίσταται σήμερα.
Σημειώνεται εξ αρχής, πως, εντός των ημερών ο Δήμαρχος Σύρου – Ερμούπολης, Γιώργος Μαραγκός θα συναντήσει την Υπουργό Πολιτισμού, Μυρσίνη Ζορμπά στην Αθήνα, με σκοπό να συζητήσει το σοβαρό θέμα, αφού θα απαιτηθούν οι εγκρίσεις από την πλευρά του Υπουργείου της, καθώς μιλάμε για έργο – παρέμβαση εντός του ιστορικού τόπου της Ερμούπολης, ωστόσο το θέμα θα έρθει προς συζήτηση και στο δημοτικό συμβούλιο.
Επί του θέματος έκανε λιτή αναφορά ο Δήμαρχος στην πρόσφατη συνεδρίαση του δημοτικού συλλογικού οργάνου, καθώς η κ. Ζορμπά είχε προγραμματισθεί να επισκεφθεί το νησί, ωστόσο, ακυρώθηκε το ταξίδι της, ενώ ο Αντιδήμαρχος Τεχνικών Υπηρεσιών, Φραγκίσκος Βακόνδιος κλήθηκε από την “Κοινή Γνώμη” να μιλήσει για τις αλλαγές που προβλέπει η μελέτη για τη μικρή πλατεία της παραλιακής ζώνης της Ερμούπολης.
Καθαίρεση της μισής πλατείας στη νοτιοδυτική πλευρά
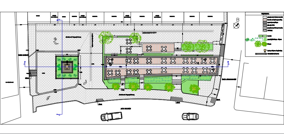
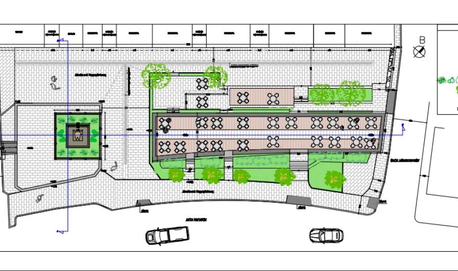
Ερωτηθείς σχετικά με την ολοκλήρωση της μελέτης για την πλατεία Παπάγου, ο αρμόδιος Αντιδήμαρχος, γνωστοποίησε πως, η εκπόνησή της “ξεκίνησε περίπου τον (σσ. περασμένο) Απρίλιο, λίγο μετά από τη συνάντηση με τον γλύπτη του αγάλματος του Μάρκου Βαμβακάρη, ο οποίος είχε έρθει στη Σύρο ώστε να δει συνολικά τον χώρο της πλατείας”. Τονίζοντας εξ αρχής πως, η κυριότερη αλλαγή θα αφορά το τμήμα της πλατείας, όπου και θα τοποθετηθεί το άγαλμα του μεγάλου Ρεμπέτη, κατέστησε ξεκάθαρο πως, το νοτιοδυτικό τμήμα της, θα δεχθεί τις απαιτούμενες καθαιρέσεις και άλλες ήπιες αλλαγές, ώστε να διαμορφωθεί βάση για το άγαλμα και να αναβαθμιστεί αισθητικά το εν λόγω τμήμα. Αξίζει να υπενθυμιστεί μάλιστα, πως στη συνεδρίαση του δημοτικού συμβουλίου τον περασμένο Μάιο είχε γίνει λόγος για σημερινές “φαραωνικές κατασκευές” από τσιμέντο, οι οποίες δεν αναδεικνύουν το τμήμα ως πλατεία.
Σχετικά με τη μελέτη που προβλέπει συγκεκριμένες αλλαγές, ο κ. Βακόνδιος τόνισε πως, “Η μελέτη αποτυπώνει συνολικά όλη την υπάρχουσα κατάσταση, τις αλλαγές και την τοποθέτηση του αγάλματος και θα πάει συνολικά στο Υπουργείο Πολιτισμού. Δηλαδή αφορά σε όλο το μήκος της πλατείας”.
Σύμφωνα με όσα αναφέρει στην τεχνική περιγραφή της η μελέτη, “Οι βασικές παρεμβάσεις στην περιοχή μελέτης είναι: η καθαίρεση του υπερυψωμένου τμήματος σε σχήμα τραπεζίου στη νοτιοδυτική πλευρά της πλατείας, η κατάργηση των υφιστάμενων παρτεριών γύρω από το παραπάνω τμήμα, η τοποθέτηση του αγάλματος και της βάσης του σύμφωνα με το σχέδιο του γλύπτη, συνοδευόμενη από όλες τις απαραίτητες εργασίες εκσκαφών, επιχώσεων, σκυροδετήσεων και επιστρώσεων, η τοποθέτηση μαρμάρινων πλακών ιδίου μεγέθους, σχήματος και χρώματος με τις υφιστάμενες, γύρω από την περιοχή του αγάλματος, η αντικατάσταση του δαπέδου από λωρίδες φυσικής ξυλείας, με σανίδες συνθετικής ξυλείας (deck) στη βορειοανατολική πλευρά της πλατείας η αντικατάσταση όλων των φθαρμένων και σπασμένων μαρμαροπλακών, η επέκταση των γραμμών στο υπάρχον αποχετευτικό δίκτυο, για τη σωστή απορροή των ομβρίων υδάτων και η εγκατάσταση και τοποθέτηση φωτιστικών για τον φωτισμό και την αισθητική ανάδειξη του αγάλματος”.
Τοποθέτηση αγάλματος Μάρκου Βαμβακάρη
Δεδομένης της πρόθεσης της οικογένειας του Μάρκου Βαμβακάρη να αναλάβει το κόστος για τη φιλοτέχνηση και τοποθέτηση ενός αγάλματος στη μνήμη του Πατριάρχη του Ρεμπέτικου που ήταν Συριανός και της αναφοράς στο δημοτικό συμβούλιο περί τοποθέτησης αυτού σε τμήμα της πλατείας Παπάγου, ο αρμόδιος Αντιδήμαρχος κλήθηκε να ενημερώσει σχετικά.
Ειδικότερα, για το σημείο όπου και προβλέπεται να υπάρξει το άγαλμα, δηλαδή στο μέσον του τμήματος της μισής πλατείας, στη νοτιοδυτική πλευρά, ο ίδιος σημείωσε τα εξής: “Έγινε υπόδειξη από τον γλύπτη, δηλαδή ποιο σημείο θεωρεί ο ίδιος καλύτερο για να τοποθετηθεί το άγαλμα. Βασιστήκαμε στην υπόδειξή του και ολοκληρώθηκε η μελέτη από την Τεχνική Υπηρεσία”. Συμπλήρωσε μάλιστα πως, “το άγαλμα προβλέπεται να τοποθετηθεί στο μέσον του τμήματος της πλατείας που δεν αναπτύσσονται τραπεζοκαθίσματα” αφού όπως σχολίασε, “τα επίπεδα σε αυτό το σημείο θα αλλαχθούν, θα γίνουν επεμβάσεις πάνω σε αυτά και θα ισοπεδωθεί ένα κομμάτι της πλατείας. Αυτή είναι η πρόταση της Τεχνικής Υπηρεσίας με την υπόδειξη του γλύπτη”.
Σύμφωνα με τη μελέτη μάλιστα, “Η βάση στήριξης θα είναι από οπλισμένο σκυρόδεμα, θα επενδυθεί με διακοσμητικά μάρμαρα, σύμφωνα με τις οδηγίες του γλύπτη και με μέριμνα του δωρητή του αγάλματος” ενώ επιπλέον, “θα τοποθετηθούν όλα τα διακοσμητικά στοιχεία όπως κολωνάκια, καγκελάκια στην περίμετρο του αγάλματος, πάλι σύμφωνα με τις οδηγίες του γλύπτη (...) καθώς και με τις οδηγίες της επίβλεψης”.
Αξίζει να αναφερθεί πως, για την ανάδειξη του αγάλματος τονίζεται ιδιαιτέρως η ανάγκη ύπαρξης φωτιστικών. “Στην περίμετρο της βάσης του αγάλματος, θα τοποθετηθούν ειδικά φωτιστικά σώματα για τον φωτισμό και την αισθητική του ανάδειξη, συνοδευόμενα από όλες οι απαραίτητες εργασίες για την εγκατάσταση και την πλήρη λειτουργία τους” αναφέρεται χαρακτηριστικά στο περιεχόμενο της μελέτης.
Δάπεδα αντοχής για το τμήμα των τραπεζοκαθισμάτων
Ιδιαίτερη μέριμνα υπάρχει και για το τμήμα της ανάπτυξης τραπεζοκαθισμάτων στην πλατεία Παπάγου, με έμφαση στα δάπεδα, τα οποία σήμερα έχουν περιέλθει σε κάκιστη κατάσταση.
Πρόκειται για μία πραγματικότητα που έχει αποτελέσει πολλάκις περιεχόμενο έντονων και άκρως δικαιολογημένων παραπόνων από την πλευρά των επιχειρηματιών εστίασης της περιοχής προς τη Δημοτική Αρχή, αφού με δυσκολία τοποθετούν τον εξοπλισμό και τα έπιπλα, με φόντο την αποκόλληση ή και πλήρη καταστροφή μεγάλων τμημάτων των δαπέδων.
Όπως υπογραμμίζει σχετικά ο Φραγκίσκος Βακόνδιος, “Επίσης η μελέτη περιλαμβάνει πλακοστρώσεις και βελτίωση των δαπέδων”, συμπληρώνοντας μάλιστα πως, “Στο τμήμα των τραπεζοκαθισμάτων η πλατεία παραμένει σε γενικές γραμμές όπως στην παλαιά μελέτη” αφού δεν θα προκύψουν καθαιρέσεις, ενώ αναφέρει ακόμη πως, από το Υπουργείο θα ζητηθούν εγκρίσεις για χρήση υλικών αντοχής, με σκοπό να αποφευχθεί η επανάληψη προβλημάτων στα δάπεδα.
“Ζητάμε και εγκρίσεις για αντικατάσταση υλικών, ενώ θα ενισχυθεί και ο φωτισμός” πρόσθεσε ο Αντιδήμαρχος Τεχνικών Υπηρεσιών, διευκρινίζοντας ακόμη πως, το συνολικό κόστος για τις επεμβάσεις και τη νέα εικόνα της πλατείας – πλην της δαπάνης για το άγαλμα – θα αναλάβει ο Δήμος Σύρου – Ερμούπολης.
Ερωτηθείς αν προβλέπεται να αλλάξει κάτι σχετικά με τη δραστηριότητα των επιχειρήσεων εστίασης στο συγκεκριμένο μέρος της πλατείας Παπάγου, ο ίδιος ήταν κατηγορηματικός: “Αυτό είναι απόφαση του Δήμου. Δεν νομίζω πως θα αλλάξει κάτι, αλλά είναι απόφαση της κάθε Δημοτικής Αρχής αν θα παραχωρεί χώρο ή όχι. Εμείς δεν έχουμε συζητήσει κάτι για να αλλάξει το “καθεστώς” στη συγκεκριμένη πλατεία”.
Τελική απόφαση από το δημοτικό συμβούλιο Σύρου – Ερμούπολης
Παρά τη συνάντηση που θα έχει εντός των ημερών ο Γιώργος Μαραγκός στην Αθήνα με την Υπουργό Πολιτισμού, προκειμένου όπως ανέφερε ο Φραγκίσκος Βακόνδιος “να δούμε κι από εκεί τις παρατηρήσεις”, υπήρξε σαφής ως προς το θέμα της συζήτησης της μελέτης στο δημοτικό συμβούλιο του Δήμου Σύρου – Ερμούπολης.
“Αυτή η πρόταση θα πάει στο δημοτικό συμβούλιο. Εφόσον εγκριθεί από το δημοτικό συμβούλιο θα σταλεί στο Υπουργείο Πολιτισμού για τελικές εγκρίσεις κι εφόσον εγκριθεί κι από εκεί θα μπορούμε να κάνουμε τις επεμβάσεις στην πλατεία Παπάγου” ανέφερε σχετικά, χωρίς όμως να μιλά για το ακριβές κόστος των επεμβάσεων του έργου.
Ερωτηθείς ο κ. Βακόνδιος, αν η εν λόγω μελέτη ή έστω οι κύριες αλλαγές που προβλέπει, έχουν συζητηθεί με την πλευρά των επιχειρηματιών της περιοχής, ώστε να έχουν γνώση και λόγο αναφορικά με αυτές, ο ίδιος απάντησε καταφατικά, λέγοντας τα εξής: “Έχουν γίνει κατά καιρούς συζητήσεις και δύο από τους επιχειρηματίες της περιοχής έκαναν ένσταση – προφορικά και γραπτά -, αλλά όλα θα αναφερθούν στο συμβούλιο”. Θέλησε να διευκρινίσει μόνον πως, αυτές οι διαφωνίες σχετίζονται με τη θέση του αγάλματος, ωστόσο, όπως επανέλαβε “θα πάρει απόφαση το συμβούλιο και σε κάθε περίπτωση η προτεινόμενη θέση είναι η καλύτερη θέση όπως υπέδειξε και ο γλύπτης”.
Ολοκληρώνοντας τις δηλώσεις του προς την εφημερίδα, ο Αντιδήμαρχος εξέφρασε την ικανοποίησή του για την εκπόνηση της μελέτης, λέγοντας πως, “και οι επιχειρηματίες και οι κάτοικοι επιθυμούσαν να αναβαθμιστεί το συγκεκριμένο κομμάτι της παραλίας της πλατείας Παπάγου. Αν υπάρξουν οι εγκρίσεις από το αρμόδιο Υπουργείο Πολιτισμού θα μπορούν να γίνουν και οι παρεμβάσεις για τον συγκεκριμένο χώρο”.
Ο κ. Βακόνδιος θέλησε να ευχαριστήσει δημοσίως τις υπαλλήλους της Τεχνικής Υπηρεσίας, Μαρία Ταρζέντα και Ελεάννα Σαμουτζάκη για την εκπόνηση της μελέτης.
Διευκρινίζεται πως το φωτογραφικό υλικό λήφθηκε από τη μελέτη.
- Εισέλθετε στο σύστημα ή εγγραφείτε για να υποβάλετε σχόλια
Διαβάστε ακόμα
- «Ο Μάρκος πρέπει να ενώνει τους Συριανούς»
20 Δεκ. 2017 - 6:18 - Πλήρης εγκατάλειψη του Πνευματικού Κέντρου Ερμούπολης
22 Οκτ. 2025 - 6:19 - Σε στάδιο αναστύλωσης τα δύο πρώτα ταφικά μνημεία
16 Οκτ. 2025 - 6:20 - Στο “μικροσκόπιο” ο δημοτικός φωτισμός με 885 χιλ. ευρώ
14 Οκτ. 2025 - 6:20 - Σε “ράγες” ενεργειακής αναβάθμισης το Νοσοκομείο Σύρου
10 Οκτ. 2025 - 6:20